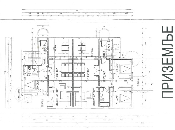
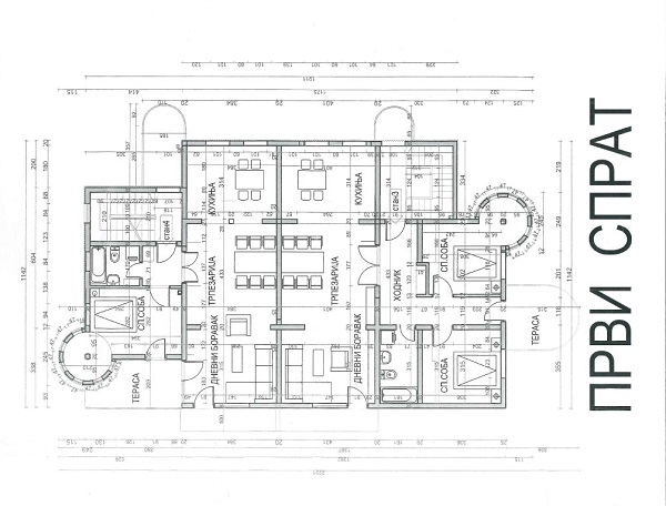
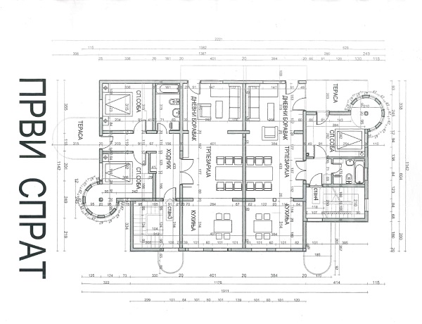
Prodaje se odličan objekat u izgradnji, sa velikim potencijalom, smešten na placu od 10 ari. Do sada je izgrađeno 350m² (podrum + prizemlje), a objekat je projektovan kao dve potpuno odvojene stambene ili poslovne jedinice, svaka sa svojim zasebnim ulazom i privatnim dvorištem.
- Plac je u potpunosti ograđen betonskom ogradom dužine 66m, sa temeljom 1m u zemlji
- Urađeni trotoari oko objekta
- Postoje svi priključci – 2 priključka za struju, vodu i gas
- Dve septičke jame
- Objekat je u fazi izdavanja građevinske dozvole
- Mogućnost prenamene u stambeno ili poslovno – idealno za klinike, kancelarije, dve porodične kuće, apartmane za izdavanje, itd.
Lokacija, prostorni raspored i infrastruktura čine ovu nekretninu izuzetno pogodnom za investitore, ali i za one koji žele da spoje život i posao na jednoj adresi.
Adresa: Luja Daviča 17, naselje Ledine, Novi Beograd
Sve informacije na sledeće brojeve telefona:
Viber/Whats app +49 162 4291 450 Ljiljana
060 441 7880 Ana
060 162 79 30 Ićo
Pogledajte skicu objekta:

























